Por Amor al Arte, déjame ExplicArte Sevilla, déjame ExplicArte el Pabellón de España, de Julio Cano Lasso, para la Exposición Universal de 1992, de Sevilla.
Hoy, 11 de octubre, es el aniversario (11 de octubre de 1992) del Día Nacional de España en la Expo '92, así que hoy es el mejor día para ExplicArte el Pabellón de España, de Julio Cano Lasso, para la Exposición Universal de 1992, de Sevilla.
La Exposición Universal se ubicó en la llamada Isla de la Cartuja, que se encuentra en el Barrio de Triana Oeste, del Distrito de Triana.
El Pabellón de España [nº 132 en el plano oficial de la Exposición Universal de 1992], Se encuentra en cruce del Camino de los Descubrimientos con la calle Isaac Newton, denominada como Avenida 2 o de Europa durante Exposición Universal, en el Barrio de Triana Oeste, del Distrito Triana.
El Pabellón de España, levantado al borde del Lago de España, en una de las parcelas de mayor superficie, dando fachada al Camino de lo Descubrimientos, se construyó según proyecto de un arquitecto de indudable prestigio y sólida trayectoria profesional: Julio Cano Lasso (Madrid 1920-1996), que planteó un edificio que había de ser simbólico y representativo.
Hoy, 11 de octubre, es el aniversario (11 de octubre de 1992) del Día Nacional de España en la Expo '92, así que hoy es el mejor día para ExplicArte el Pabellón de España, de Julio Cano Lasso, para la Exposición Universal de 1992, de Sevilla.
La Exposición Universal se ubicó en la llamada Isla de la Cartuja, que se encuentra en el Barrio de Triana Oeste, del Distrito de Triana.
El Pabellón de España [nº 132 en el plano oficial de la Exposición Universal de 1992], Se encuentra en cruce del Camino de los Descubrimientos con la calle Isaac Newton, denominada como Avenida 2 o de Europa durante Exposición Universal, en el Barrio de Triana Oeste, del Distrito Triana.
El Pabellón de España, levantado al borde del Lago de España, en una de las parcelas de mayor superficie, dando fachada al Camino de lo Descubrimientos, se construyó según proyecto de un arquitecto de indudable prestigio y sólida trayectoria profesional: Julio Cano Lasso (Madrid 1920-1996), que planteó un edificio que había de ser simbólico y representativo.
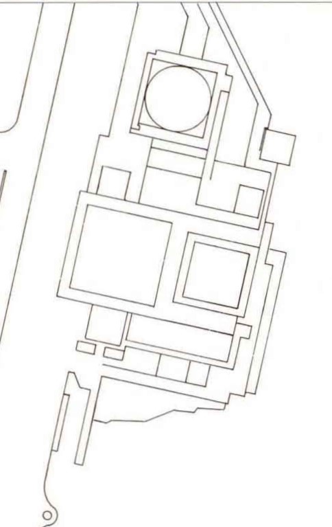
Ocupaba una península en el lago, cuyo eje principal es continuación de la Avenida de Europa, y, en la que se mostraba como un edificio de marcado carácter horizontal con cuerpos de poca altura de los que emergen dos volúmenes principales: un gran cubo blanco que preside el Lago y la Cúpula Esférica del Cine.
El edificio se articula en una trama ortogonal, protagonizada por un patio principal (Plaza Mayor de España) que centraliza las circulaciones del edificio, patios laterales (Patio de Europa, de África, de Oceanía, de Asia y de la Dehesa) y una calle peatonal, proponiéndose elementos de transición entre los espacios libres y los interiores, basados en mecanismos espaciales, de filtraje y tamizado de luz según la tradición cultural andaluza. El conjunto de volúmenes articulados y unidos por porches, pórticos y cuerpos bajos, forman recintos que crean una alternancia de espacios, efectos de luz, tránsitos, que son animados por el agua y la vegetación, las celosías, los toldos y emparrado.
El programa conjugaba aspectos representativos y funcionales. Los primeros se resolvieron a lo largo del eje que prolongaba el de la Avenida de Europa, iniciándose en un vestíbulo, accediéndose a un patio entoldado de importantes dimensiones hasta llegar al proyectado Salón de Recepciones que avanzaba sobre el Lago. El resto del programa se desarrollaba en tres niveles a ambos lados de este eje.
El cubo que Cano Lasso destinó a Salón de Recepciones era un gran espacio vacío, de dorada y suave iluminación, de 25 x 25 x 25 metros interiores, con paredes encaladas y pavimento de mármol con cenefas de mosaico de mármoles y esmaltes y cuyo techo dorado, parecía un lienzo suspendido, mientras el exterior, hermético equilibraba el volumen de la cúpula de cobre y recubría de mármol blanco sus cerramientos, permitiendo a nivel del suelo la apertura del Salón en balconada sobre el río.
En la planta semisótano se sitúa el aparcamiento, las instalaciones técnicas, almacenes, carga y descarga, algunas salas de exposición durante la Expo y el restaurante con la cocina.
Especial estudio tuvo en el proyecto la jardinería que se había de utilizar, que comenzaba desde la plaza de acogida, hasta la cobertura continua de plantas en toda la longitud de la jardinera, con aspecto colgante y el complemento de plantas olorosas, de forma que cubrieran de verde las paredes, utilizando desde madreselva, Solanum y Pandorea.
El arquitecto Julio Cano Lasso resulta ganador con el anteproyecto presentado en el concurso restringido de ideas sobre el Pabellón de España en la Exposición Universal Sevilla 1992, en el tercer trimestre de 1989. El Proyecto Básico fue presentado en el CEUN el 4 de abril de 1990. El 29 de mayo de 1990 concede la Comisión Ejecutiva de Urbanismo del Ayuntamiento de Sevilla la licencia municipal de obras para la construcción del Pabellón. Antes de la firma del contrato de obras se procede el 29 de mayo de 1990 a la colocación de la primera piedra, presidiendo el acto los Reyes de España y el Presidente del Gobierno.
Tras replanteo previo de 11 de junio de 1990, el 21 de junio se aprueba el Acta de Replanteo y se comienza la construcción del Pabellón, con la dirección facultativa de Julio Cano Lasso y los aparejadores Manuel Pérez Romero y Adolfo Pinto Mesto.
En junio de 1991, de acuerdo con Pabellón de España S.A. cesa Julio Cano Lasso como director de obras, ocupando su lugar los arquitectos Juan Herrero Fernández, José María Fernández Isla y Luis Miquel Suárez-Inclán, continuando los mismos aparejadores.
El Pabellón de España ha sido uno de los edificios más emblemáticos de la arquitectura de la Exposición, siendo objeto de una importante difusión en medios especializados. El edificio mantiene en la actualidad, tanto exterior como interiormente, un buen estado de conservación, pudiendo apreciarse los valores arquitectónicos que posee.
El Pabellón de España fue proyectado como un edificio permanente en el recinto de la Expo '92. Ha sido reutilizado como sede de la sociedad Isla Mágica, presentando pequeñas zonas que están cedidas en su uso a otras empresas. Ha contado para su adaptación con la estructura originaria del Pabellón, que ha sido capaz de adaptarse a los nuevos requerimientos funcionales sin que tal acomodo haya supuesto una intervención de cambios espaciales en el edificio, por lo que no se ha alterado el aspecto exterior del inmueble y mínimamente su interior.
La intervención más irreversible ha sido la ocupación de una importante zona del Lago de la Expo '92 por los jardines que anteceden al Pabellón, actualmente utilizados por Isla Mágica y que han alterado notablemente uno de los elementos visuales y plásticos que permitían el completo entendimiento del edificio, que jugaba con reflejos en el agua que devolvían la fuerza de los contundentes volúmenes propuestos (Guía Digital del Patrimonio Cultural de Andalucía).
Sintetizar la riqueza, variedad y complejidad de un país como España en una Exposición en la que, además, es imprescindible entretener y, en buena medida, sorprender, constituye un reto singular.
A orillas del Lago de España y desde el centro de la Exposición, una cúpula semiesférica y un voluminoso cubo sobresalen de una fachada blanca de cal y mármol. En el interior, un gran patio central y canales con agua distribuyen las estancias.
Tradición y modernidad, unión de culturas, historia, idiomas... Signos identificativos de un pueblo que arraigó en la historia universal con características propias proyectadas más allá de sus fronteras. Y de todo ello se habla en su interior a través de tres diferentes recorridos por sus salas, en sus espectáculos, en sus actividades.
Bajo el emblemático cubo, se cobija una muestra única de arte clásico, una sala llena de tesoros universales que reflejan la trascendencia del extraordinario legado cultural de España.
Un recorrido por seis salas diferentes, en las que se han incorporado técnicas y medios audiovisuales espectaculares, escenografías y tecnologías muy diversas y novedosas, permiten ofrecer una panorámica general de España y conocer mejor un viejo país que se ha transformado profundamente para adaptarse al mundo de hoy como agente activo y con voz propia.
En ellas se muestra la variedad geográfica y humana, paisajes y climas, su rica y variada historia, la confluencia de sucesivas culturas, el impacto del Descubrimiento, el idioma, puente y unión entre los mundos, la España más actual, la del futuro...
En la cúpula se aloja un cine con sistema de proyección esférico y asientos móviles que, sincronizados con las imágenes, unen la belleza y atractivos de España con el espectáculo y la emoción de vivirlo activamente.
Y aún más. Actos culturales, terminales interactivos donde recabar información, actuaciones, fiestas tradicionales, muestras de artesanía, gastronomía, simposios, foros y actividades en torno al idioma, la imagen pasada y presente de España, la sociedad democrática mundial...
Toda la variada, rica y plural representación de España, de un país moderno, abierto al mundo, activo, fuera de tópicos y volcado hacia el futuro, un futuro cada vez más real. La cita obligada en el mejor escenario de la Exposición Universal Sevilla 1992.
España, para descubrirse (Guía oficial de la Expo '92).
El Pabellón de España es el edificio con mayor superficie construida en toda la Isla de la Cartuja, solo superado por la Plaza de América, actual Escuela de Ingenieros. Se encuentra en cruce del Camino de los Descubrimientos con la calle Isaac Newton, denominada como Avenida 2 o de Europa durante Expo'92, cuando presidía los 12 pabellones que componían por entonces la Comunidad Económica Europea. Actualmente está integrado en el Parque Temático Isla Mágica.
El edificio está formado por un cubo de 30 metros de lado, en el que, actualmente, se proyecta un espectáculo audiovisual en su interior conocido como "El Cubo". Este cubo, a su vez, está conectado con un patio central y, en paralelo, con otro edificio rematado en una cúpula semiesférica de cobre: "La Esfera". En el interior de esta cúpula, perdura todavía el cine de simulación Movimax, que se rebautizó con el nombre de "Cinemoción" para formar parte de las atracciones del parque temático.
En conjunto, el pabellón es de estructura racional, de color blanco y paneles de chapa esmaltada y zócalos, además de pórticos de mármol blanco con pavimentos de barro y mármol y reposa sobre una península que avanza sobre el Lago de España.
El arquitecto Julio Cano Lasso, encargado del diseño del pabellón, dimitió a mitad de construcción, haciéndose cargo el estudio de arquitectos Herrero en colaboración con Miguel Ángel Ciganda, diseñador ganador del concurso de mobiliario del pabellón.
Considerado una de las joyas de la Exposición, el pabellón de España logró superar la media de 30.000 visitantes diarios que Ángel Luis Gonzalo, comisario del pabellón, se marcó como objetivo antes de la apertura de la Exposición Universal. Esto ocasionó largas colas de espera a la entrada y carreras de los visitantes en las aperturas de puertas diarias hasta el pabellón para entrar a tiempo.
Entre sus contenidos, el arte, tanto pasado como contemporáneo, fue el principal atractivo del pabellón. Se dividió en varias exposiciones según su temática y época. En la exposición "Pasajes: Actualidad del arte español" se podían contemplar obras de Tapies, Chillida, Gordillo, Gustavo Torner, Antonio Saura, Barceló o Pérez Villalta; este último creador también de los frescos del pabellón de Andalucía.
"El Cubo" albergaba la magna exposición "Tesoros", con obras originales de los autores más importantes del país: El Greco ("El caballero de la mano en el pecho"), Picasso, Velázquez ("Retrato del Conde Duque de Olivares"), Goya ("La maja desnuda"), Murillo, Zurbarán, Dalí, Miró, Sorolla, entre otros. A su vez, la amplia fachada blanca que proporcionaba esta estructura en forma de cubo hacía las veces de pantalla de proyección, donde se pudo ver desde la inauguración de Expo'92 hasta la del parque temático que la precedería.
Otro de los protagonistas del pabellón fue la película "Vientos de España", proyectada en una sala de cine "Movimás" con capacidad para 162 espectadores, pantalla semiesférica y asientos móviles instalada en el interior de "La Cúpula", llegando a albergar 5.600 visitantes diariamente. En ella, el visitante parecía estar haciendo windsurf, montando a caballo o sentir el vértigo de viajar en globo mientras disfrutaba de los mejores paisajes del país, gracias al movimiento y el gran tamaño de su pantalla.
Como complemento a los contenidos se encontraba la exposición "Caminos de España", donde a través de siete salas, se realizaba un recorrido por la historia, la cultura, la lengua, el presente y el futuro de España. Tras un primer juego de audiovisuales a manera de presentación, sincronizado con la música de la ópera "Carmen", el visitante entraba en una larga cueva que desembocaba en una sala con signos de las distintas culturas en España hasta 1.492.
En la siguiente sala se explicaba lo que supuso el encuentro del Viejo Mundo y el Nuevo. A continuación se accedía a la "Sala de la Lengua", donde se proyectaba una película de animación con Sancho y Don Quijote como protagonistas, mientras hablaban de la lengua castellana, su evolución e implantación mundial.
La siguiente sala, la preferida del público, mostraba el presente del país a través de 15 pantallas, un ordenador animado, un láser y un juego de pantallas que se elevaban, haciendo que el movimiento y la sorpresa cobraran protagonismo.
El recorrido finalizaba con la voz de un astronauta del siglo XXI que afirmaba ser descendiente de un visitante del pabellón, así como varios ordenadores y CDs interactivos donde los visitantes podían obtener más información.
Tras la clausura de la Exposición Universal, el pabellón se integró en el parque temático Cartuja. El Parque de los Descubrimientos, conservando la proyección del cine "Movimás" y la exposición "Caminos de España". Esta última apenas duró unos meses y todo su contenido, valorado en 500 millones de pesetas, fue subastado en diciembre de 1993, junto con miles de lotes procedentes de la celebración de la Muestra Universal.
En julio de 1994, "El Cubo" se abrió de nuevo al público como el espectáculo de vanguardia "Láser-Clips", con una proyección de once minutos y el uso de lásers, efectos especiales, caricaturas, colores, efectos gráficos, etc.
Para 1997, el pabellón se adaptaría al nuevo parque temático Isla Mágica, donde se han sucedido distintas películas con sistemas 3D complementadas con el movimiento de butacas de cine "Movimás".
Hoy en día, el pabellón desempeña múltiples funciones: es sede de las oficinas del parque temático, parte de él está destinado como atracción para la misma Isla Mágica, además de albergar una guardería y una discoteca que utiliza distintos salones del edificio, así como los patios interiores de éste (Blog Pasaporte Expo 92).
Conozcamos mejor la Biografía de Julio Cano Lasso, autor de la obra reseñada;
Nació en Madrid en 1920 y se tituló por la Escuela Técnica Superior de Arquitectura de Madrid en 1949, con Premio Extraordinario Fin de Carrera Carmen del Río, obteniendo el título de técnico urbanista en 1951 y el de doctor arquitecto en 1952.
Siendo estudiante es influido por la Escuela de Ámsterdam, más concretamente por Dudock y Berlage, y le despierta gran interés la revista Architettura Italiana que, tras la Guerra Civil, era una de las pocas referencias de contacto con el exterior. Desde el tercer curso simultanea sus estudios con el aprendizaje profesional en el estudio del arquitecto Manuel Cabanyes. Fue seguidor de los primeros intentos de Coderch, Cabrero, Fisac, De la Sota... hacia una arquitectura contemporánea que comenzaba a surgir tras la arquitectura historicista de exaltación nacional que se había impuesto en los años de posguerra. La nueva arquitectura comenzaba a abrirse camino en medio de la escasez y penuria tecnológica con soluciones ingeniosas que prescindían del hierro y de otros materiales inexistentes en el mercado.
En 1953 trabajó, bajo la dirección de Fernando Moreno Barberá, junto a Juan Gómez González de las Buelgas y Rafael de la Joya Castro, en la transformación del Hospital Real en Hostal de los Reyes Católicos en Santiago y más tarde, en 1959 y con el mismo equipo, en la casa del Viaducto en Madrid. En 1956 proyecta las viviendas de la calle de Espalter, con terrazas orientadas hacia el Jardín Botánico, en las que experimenta con la gran profundidad de crujía. Con Luis Gutiérrez Soto y junto a Corrales y Molezún trabajó, en 1957, para la Obra Sindical del Hogar, en el polígono G de San Blas.
En 1959 proyecta su vivienda de La Florida en contacto con la naturaleza, y unos años más tarde construye el estudio junto a ella articulándolo con un patio. De 1966 son las viviendas de la calle Basílica, un manifiesto en el debate de la cultura arquitectónica; en ellas experimenta con la manzana abierta (en la que el espacio interior ajardinado queda incorporado a la escena urbana) y con la composición diagramática de las fachadas que, con intención racionalista, explora el rigor de la proporción hueco-macizo y el espesor del muro de ladrillo. Realiza otras propuestas de arquitectura residencial urbana: en Madrid, en 1973 (viviendas de la calle Ponzano), 1974 (viviendas de la calle Rosales), 1986 (viviendas en Palomeras) y 1992 (viviendas en Valdebernardo); y en Santiago, en 1960, las viviendas de Vite y San Cayetano. Durante 1968 gana, junto a Juan Antonio Ridruejo, el concurso restringido de la sede Central de Telefónica y como consecuencia realizan, a lo largo de los años, tres interesantes propuestas de arquitectura naturalista, ninguna de las cuales fue construida. En 1971 realiza en el concurso de Unión Industrial Bancaria, en la Castellana de Madrid, un proyecto innovador y de gran interés por la forma de resolver la doble piel filtrante con cámara ventilada de la ligera fachada. Entre 1966 y 1972 proyecta edificios de comunicaciones para la Compañía Telefónica: la central de seguimiento de satélites en Buitrago, la central de Torrejón de Ardoz y la central del madrileño barrio de la Concepción, construyéndolas masivamente en ladrillo para poner en tensión y comunicación la avanzada función, en aquellos momentos casi en la frontera de la ciencia-ficción, con algo de civilizaciones tan antiguas como una construcción en ladrillo, material que, como él dijo, era “como el pan, de ricos y de pobres”.
La construcción de tres universidades laborales, proyectos casi simultáneos realizados entre 1973 y 1974 con programas idénticos pero en situaciones tan distantes y distintas como la árida y mediterránea Almería, la lluviosa y verde Orense y la mesetaria Albacete, es expresión manifiesta de la postura del arquitecto frente al lugar y al medio en que se actúa, extrayendo y reinterpretando, con una arquitectura adaptada, las máximas enseñanzas del paisaje y de la climatología. Con el auditorio de Santiago de Compostela, premio en el concurso de 1986, tuvo la ocasión de construir dos veces en un mismo solar, ya que años antes había realizado El Burgo de las Naciones, pabellones industrializados y desmontables para el año santo de 1966. Planteó el auditorio íntimamente relacionado con la naturaleza y basándose en las enseñanzas de los invariantes de la arquitectura gallega y en la majestuosidad de los muros conventuales, que tanto le impresionaban, de San Pelayo, San Martín Pinario... “y otros grandes muros de sillería, oscuros y sombríos, animados por el toque delicado de las galerías”. En el Pabellón de España de la Exposición Universal de Sevilla de 1992, resultado de ganar un concurso restringido (1989), incorpora la esencia de la arquitectura andaluza, de antiguas raíces mediterráneas, articulando espacios y quebrando recorridos en secuencia alternada de patios y salas. Renunció, por discrepancias, a la dirección de obra. El edificio de la calle Alcalá de Madrid conjuga el uso industrial con el de oficinas contextualizando su imagen urbana, como ya hizo en el edificio central del Programa de Promoción Profesional Obrera del año 1973. Las oficinas para Nationale Nederlanden (1991), evocadora de la corriente expresionista del Movimiento Moderno y el Centro Asociado de la Universidad Nacional de Educación a Distancia (UNED) (1996), que desarrolla los criterios de la arquitectura racionalista en ladrillo, ambos en Las Rozas, fueron sus últimas obras.
A lo largo de los años consolidó su esencial posición frente a la arquitectura, traducida en el humanismo y la colaboración con la naturaleza. Su aspiración era llegar a una expresión precisa, con máxima economía de medios, el apoyo del rigor en lo constructivo y un desarrollo claro del programa. Creía en la tecnología como valor instrumental, pero ponderado y subordinado al ideal de belleza y a su capacidad de producir emoción, es decir, en la tecnología siempre al servicio del desarrollo espiritual, por lo que le desagradaba cuando su uso era arrogante y desproporcionado.
Tuvo un interés especial por las viejas ciudades monumentales españolas y su paisaje, interés recogido con bellos textos y hermosos dibujos en su libro La ciudad y su paisaje. Julio Cano Lasso fue profesor de Proyectos de la Escuela Técnica Superior de Arquitectura de Madrid entre 1962 y 1971. En 1986 recibió el Premio de Arquitectura Antonio Camuñas y en 1987 el Premio Especial de la Bienal de Buenos Aires. En 1989 editó el libro Conversaciones con un arquitecto del pasado o diálogo de la Técnica y el Espíritu. En febrero de 1991 ingresó como académico de número en la Real Academia de Bellas Artes de San Fernando. Fue Medalla de Oro de la Arquitectura en 1991 y Premio Coam en 1993, e invitado en el Pabellón de España y en el Pabellón de Corea en la Bienal de Venecia de 1996. A lo largo de su vida profesional participó en más de un centenar de concursos (Diego Cano Pintos, en Biografías de la Real Academia de la Historia).
Si quieres, por Amor al Arte, déjame ExplicArte Sevilla, déjame ExplicArte el Pabellón de España, de Luis Cano Lasso, para la Exposición Universal de 1992, de Sevilla. Sólo tienes que contactar con nosotros en Contacto, y a disfrutar de la ciudad.Más sobre la Exposición Universal de 1992, en ExplicArte Sevilla.











No hay comentarios:
Publicar un comentario